Casa indipendente in vendita

Canelli, Regione Mariano - Aie
€ 138.000
Prezzo aggiornato
6 locali 6 locali
250 Mq 250 Mq
2 bagni 2 bagni

Casa indipendente in vendita

Canelli, Regione Mariano - Aie

Descrizione annuncio

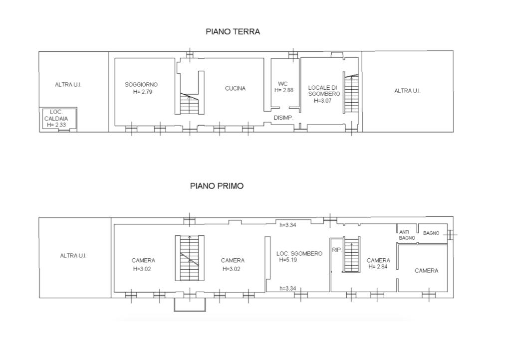
Regione Mariano, nel comune di Canelli, casa indipendente con zona esterna privata, ideale per chi cerca spazio e tranquillità. L'immobile è ben tenuto e subito abitabile, disposto su due livelli, e offre la possibilità di creare due alloggi distinti grazie alle utenze già divise ed alla sua metratura. La zona esterna, per lo più pianeggiante di circa 1.000 mq, offre una gradevole vista panoramica sulle colline circostanti, perfetta per momenti di relax all'aperto. La casa offre una spaziosa cucina abitabile, uno spazioso soggiorno e quattro camere da letto versatili per ogni esigenza abitativa. I bagni sono due, entrambi finestrati e dotati di vasca. La proprietà gode di un solaio e due depositi utilizzabili come ricovero attrezzi o cantine. Completa la proprietà un box auto e la possibilità di parcheggiare due auto nell'interno cortile. Questa casa è un'opportunità unica per chi desidera vivere immerso nella natura senza rinunciare alle comodità offerte dalla zona.

Mostra tutto

Nelle vicinanze

Trasporto pubblico Trasporto pubblico
Calamandrana
Calamandrana
1,9 Km
Canelli
Canelli
2,9 Km
Trasporto pubblico
2,0 Km
Ricariche auto elettriche Ricariche auto elettriche
Canelli Italia | EnelX
1,7 Km
Canelli Robino | EnelX
1,9 Km
Palazzetto dello Sport Canelli | EnelX
2,5 Km
Canelli Gancia | EnelX
2,6 Km
Canelli Alfieri | EnelX
2,7 Km
Scuole Scuole
Istituto Tecnico Industriale Statale "Alessandro Artom"
2,1 Km
Farmacia Farmacia
Farmacia
2,2 Km
Bielli
2,6 Km
Farmacia San Marzano - Dr.Taddei Enrico
2,8 Km
Supermercati Supermercati
Lidl
1,3 Km
Supermercati
2,7 Km
Negozi Negozi
Mirko
1,5 Km
Ristoranti Ristoranti
Del Belbo da Bardon
900 m
Ristorante Violetta
1,8 Km
La Corte
1,8 Km
Agriturismo La Viranda
1,9 Km
Civico15
2,5 Km
Mostra tutto

Caratteristiche

Rif.:
61092403
Piano:
Su più livelli di 2
Totale piani:
2
Box:
1
Posti auto:
2
Balconi:
1
Mostra tutto
Prezzo Prezzo
€ 138.000
Rata mutuo Rata mutuo
€ 643 / mese
Spese annue Spese annue
€ 0
Proponi il tuo prezzoProponi il tuo prezzo

Classe Energetica

F
F
F
F
F
F
F
F
F
EP globale non rinnovabile:
342.62 kW h/m² anno
EP globale rinnovabile:
8.99 kW h/m² anno
EP invernale del fabbricato:
EP estiva del fabbricato:
Anno di costruzione:
1940
Riscaldamento:
Autonomo
Tipo impianto:
A radiatori
Tipo alimentazione:
Gasolio

Prezzo ridotto di €1 (13%%)

Ti interessa visionare l'immobile?

Fissa un appuntamento  Fissa un appuntamento

Richiedi informazioni

Clicca su Leggi per aprire l'informativa
* Questi campi sono obbligatori

Calcola il tuo mutuo

Semplice e senza impegno
Anticipo

( % )
Mutuo

( % )

pochi semplici passi

inserisci i tuoi dati
Questionario completato
Grazie per aver richiesto un appuntamento senza impegno con un nostro Consulente del Credito e Assicurativo.

Hai inserito correttamente tutti i dati necessari e a breve riceverai una e-mail con un link da convalidare per inviare i tuoi dati.
Affiliato
Studio Canelli Sas
P.zza Cavour, 24 14053 Canelli (AT)

Il nostro staff


  • Lorenzo Folino
    Affiliato

  • Aleksandar Dimitrov
    Collaboratore

  • Alessandro Golino
    Collaboratore

  • Giulia Marini
    Coordinatrice
P.zza Cavour, 24 14053 Canelli (AT)
Zona: Canelli
Mostra su mappa
Orari: Dal lunedì al venerdì 9:00/12 :30 - 15:00/19:30; sabato 9:00/12.30 - 15:00/18:00
Affiliato
Studio Canelli Sas
P.zza Cavour, 24 14053 Canelli (AT)

2025 Tecnocasa Franchising S.p.A. - P. IVA 08365160152 - Via Monte Bianco 60/A 20089 Rozzano (MI). Ogni agenzia ha un proprio titolare ed è autonoma. Privacy policy | Policy utilizzo | Cookie policy