Casa indipendente in vendita

Cessole, Regione Leardi
€ 58.000
3 locali 3 locali
122 Mq 122 Mq
1 bagno 1 bagno

Casa indipendente in vendita

Cessole, Regione Leardi

Descrizione annuncio

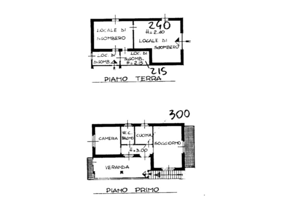
Regione Leardi, nel comune di Cessole, casa indipendente con verde privato. L'immobile si sviluppa su più livelli e offre un ambiente accogliente e funzionale. Al primo piano, la parte abitabile è caratterizzata da un soggiorno doppio luminoso, una cucina abitabile, una camera da letto e un bagno finestrato. Un terrazzo verandato vivibile regala una vista panoramica sulla zona, mentre un balcone verandato aggiunge ulteriore spazio esterno. All'esterno, un giardino privato completamente cintato offre un'oasi di tranquillità. Completano la proprietà un box singolo e un posto auto, oltre a una cantina ed un locale di sgombero. Questa casa rappresenta un'opportunità unica per chi cerca una residenza confortevole e ben collegata, immersa nel verde.

Mostra tutto

Nelle vicinanze

Ricariche auto elettriche Ricariche auto elettriche
Madonna della Neve | EnelX
2,0 Km
Loazzolo Piazza Torino | EnelX
2,4 Km
Vesime SP24 | EnelX
2,4 Km
Vesime Romita | EnelX
2,5 Km
VESIME SP25 | ENELX
2,7 Km
Negozi Negozi
Negozi
2,4 Km
Ristoranti Ristoranti
Tenuta Antica
390 m
Santamonica 2.0
740 m
Santa Monica
740 m
Albergo ristorante Madonna della Neve
1,1 Km
Quartino
2,1 Km
Mostra tutto

Caratteristiche

Rif.:
61116631
Piano:
Su più livelli di 2
Totale piani:
2
Box:
1
Posti auto:
1
Balconi:
2
Mostra tutto
Prezzo Prezzo
€ 58.000
Rata mutuo Rata mutuo
€ 270 / mese
Spese annue Spese annue
€ 0
Proponi il tuo prezzoProponi il tuo prezzo

Classe Energetica

D
D
D
D
D
D
D
D
D
EP globale non rinnovabile:
156.34 kW h/m² anno
EP globale rinnovabile:
407.64 kW h/m² anno
EP invernale del fabbricato:
EP estiva del fabbricato:
Anno di costruzione:
1970
Riscaldamento:
Autonomo
Tipo impianto:
A stufa
Tipo alimentazione:
Altro

Ti interessa visionare l'immobile?

Fissa un appuntamento  Fissa un appuntamento

Richiedi informazioni

Clicca su Leggi per aprire l'informativa
* Questi campi sono obbligatori

Calcola il tuo mutuo

Semplice e senza impegno
Anticipo

( % )
Mutuo

( % )

pochi semplici passi

inserisci i tuoi dati
Questionario completato
Grazie per aver richiesto un appuntamento senza impegno con un nostro Consulente del Credito e Assicurativo.

Hai inserito correttamente tutti i dati necessari e a breve riceverai una e-mail con un link da convalidare per inviare i tuoi dati.
Affiliato
Studio Canelli Sas
P.zza Cavour, 24 14053 Canelli (AT)

Il nostro staff


  • Lorenzo Folino
    Affiliato

  • Aleksandar Dimitrov
    Collaboratore

  • Alessandro Golino
    Collaboratore

  • Giulia Marini
    Coordinatrice
P.zza Cavour, 24 14053 Canelli (AT)
Zona: Canelli
Mostra su mappa
Orari: Dal lunedì al venerdì 9:00/12 :30 - 15:00/19:30; sabato 9:00/12.30 - 15:00/18:00
Affiliato
Studio Canelli Sas
P.zza Cavour, 24 14053 Canelli (AT)

2025 Tecnocasa Franchising S.p.A. - P. IVA 08365160152 - Via Monte Bianco 60/A 20089 Rozzano (MI). Ogni agenzia ha un proprio titolare ed è autonoma. Privacy policy | Policy utilizzo | Cookie policy